安丘市天德包装机械有限公司
电 话:0536-4741295 4741809
QQ:2276514309
传 真:0536-4741758
全国销售热线:13791860017
联系电话:13791860017 张
售后服务热线:13053638015 徐
全国统一热线:400-665-0017
网 址:m.mlwauc.cn
邮 箱:tiandejixie@126.com
邮 编:262126
地 址:山东安丘安阳路西段(慈埠工业园138号)
infomation
2019-11-13


吨袋包装机,又称大袋包装机、吨袋打包机,是一种结构独特,包装容量大的专用散装物料包装设备,集重量显示、包装时序、工艺连锁、故障报警于一体。具有计量精度高,包装容量大,密封剂环保,自动化程度高,生产能力大,适用范围广,操作简单,便于装缷等特点。有自动去皮,自动校零,灵敏度高,可联机联网实现网络化管理等功能。灌装时只需人工挂袋、套袋、给定信号后,设备可自动完成夹袋、灌装、计量,达到重量后自动封口、松袋的整个工作循环过程。该设备是针对水泥、非金属矿粉、化工原料等粉体和颗粒状物料而设计,广泛用于建材、化工、粮食、饲料等行业。
主要技术参数
序号 名称 单位 技术参数 序号 名称 单位 技术参数
1 生产能力 b/h 20-40 7 总功率 KW 7.4
2 称重范围 T 0.5-2 8 气源压力 Mpa 0.5
3 计量精度 ≤±0.5% 9 耗气量 m3/h 0.6
4 袋重合格率 ≥95% 10 除尘风量 m3/min 800-2500
5 给料方式 双速给料 11 环境温度 ℃ -10-40
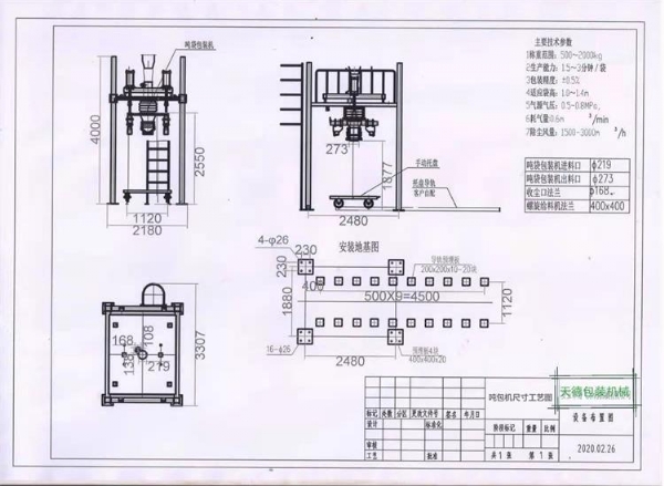
6 控制方式 仪表控制 12 安装尺寸 Mm 2180*3310*4000
技术特性
1、包装机加料,包装采用无级调速,设备性能稳定,包装精度高,速度快
2、集计量、松袋、除尘、控制连锁、故障报警于一体
3、台秤式计量,采用板数字调校及参数设定,具有重量累计显示及自动去皮、自动校零、自动落差修正等功能,灵敏度高,抗干扰能力强
4、可编程的电控系统,控制过程高度可靠
5、仪表配有通讯接口,便于联机联网,可对包装机进行实时监控和网络化管理
| 上一条:吨袋包装机 | 下一条:吨袋包装机 |